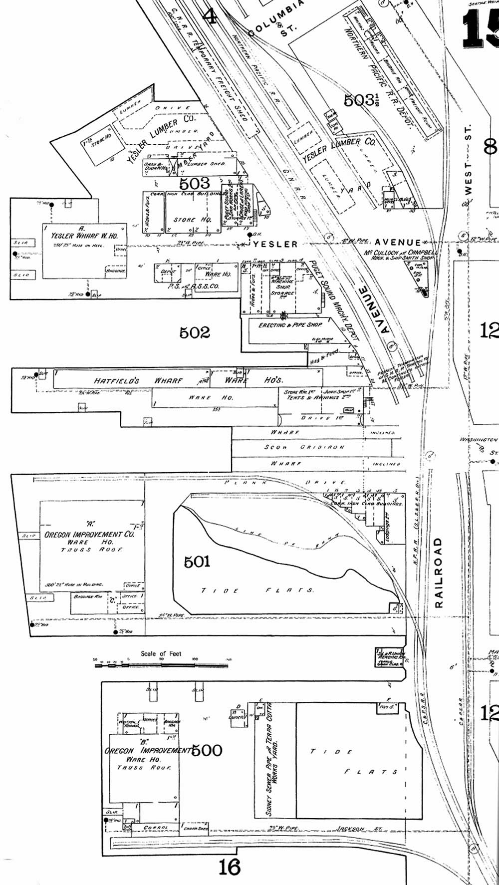
x-sanborn-1893-dtl-yesler-wharf-grab-web September 18, 2016 1000 × 1773 Seattle Now & Then: Yesler’s Wharf, 1891 A detail of the featured docks grabbed from the 1893 Sanborn real estate map. Yesler’s cock is at the top.