x-sanborn-1904-map-pike-4th5th6th-dtl-web

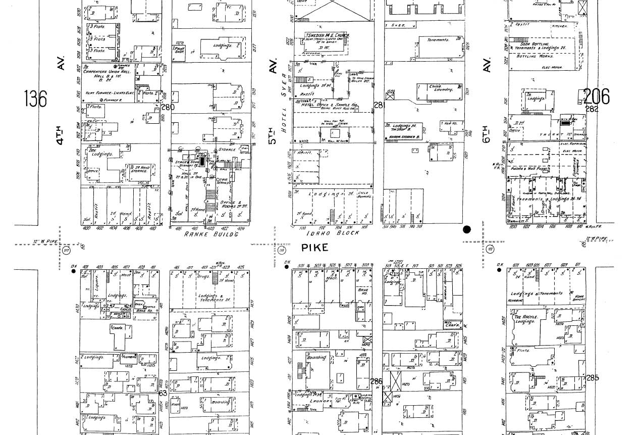
The Idaho Block at the northeast corner of Piake and Fifth Avenue appears at the center of this detail from the 1904 Sanborn real estate and fire insurance map. The Idaho is just above the “Pike” printed on the street.

Leave a Reply

This site uses Akismet to reduce spam. Learn how your comment data is processed.