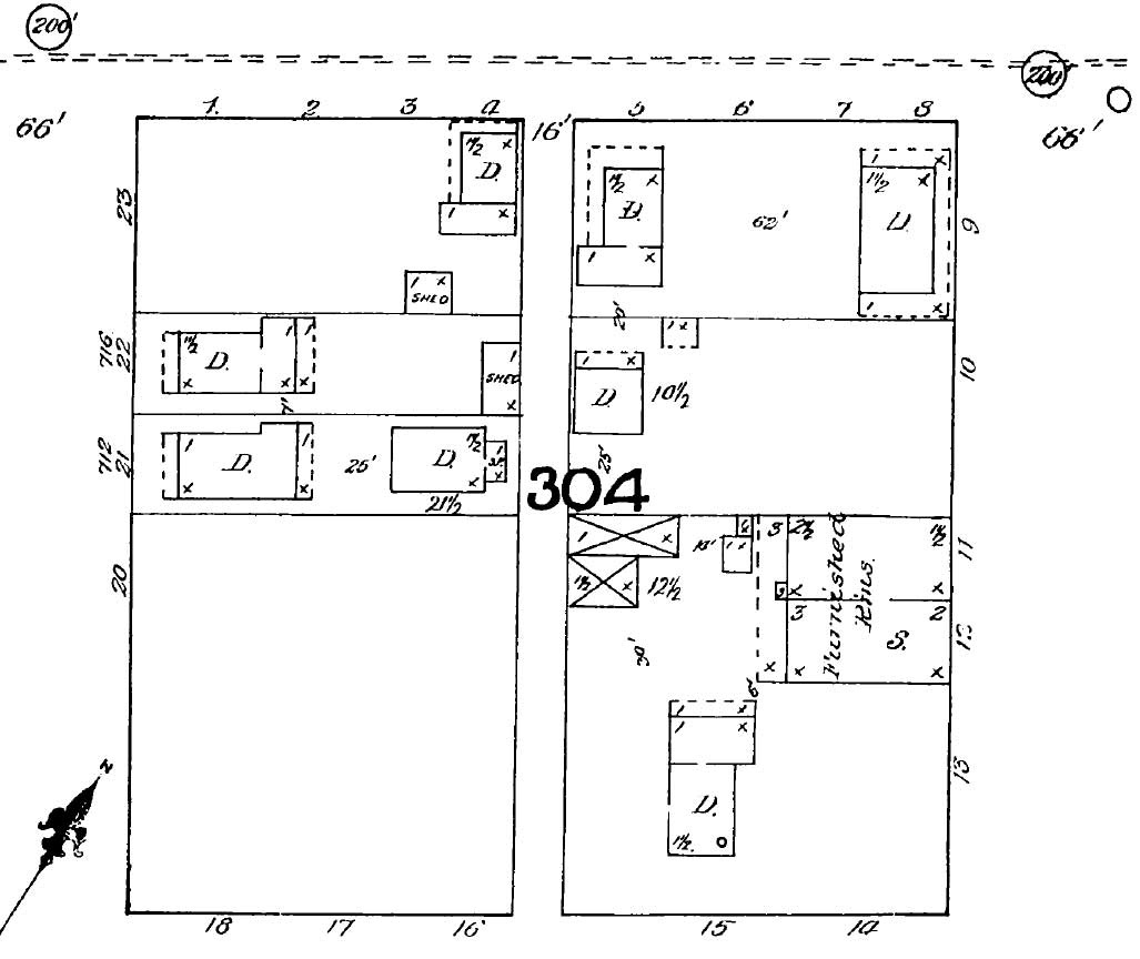
A detail from the 1888 Sanborn real estate map showing block 304 bordered by Columbia Street at the top and 7th Avenue on the right. The first two parts of the row built along the west side of 7th Avenue take lots 11 & 12. The back-porch is included with a dashed line. Lots 5-thru-8 would be taken by the fire station. The house on lot 15, facing Cherry Street, would survive 70-plus years of changes in the block.
